Új építésű lakás Szombathely - Novadom Group Kft

Ingatlan fejlesztés, ingatlan értékesítés

Keressen bennünk legújabb ingatlan ajánlatainkért!

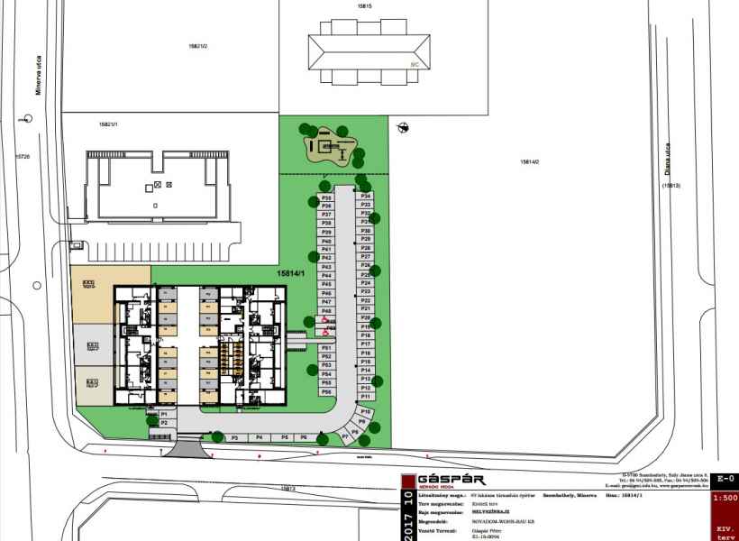
Átrium-ház Minerva lakótelep Szombathely

Az ÁTRIUM-HÁZ minden követelményének megfelelve, egy különleges lakókörnyezetet biztosít a Szombathelyi Minerva Lakóparkban élni vágyó minden generáció számára.

Az egyedi megjelenésű épület és a zárt udvari harmónia egy biztonságos élet érzetet adva modern letisztult formában jelenik meg .

A projekt egésze a megvalósulás kezdeti szakaszától fogva egységesen a minőségi elvárásokkal szembeni maximális megfelelésre törekszik.

A „Minőség – Egyediség - Formalítás Ez az Átrium-Ház„ mottónkkal az ÁTRIUM-HÁZ projekt megvalósulásra kerülő társasház különleges lehetőségét és életérzését kívánjuk kifejezni. A tervezők által megálmodott modern formai világba öntött egységes képet mutató, ugyanakkor a zárt társasház együttes a korszerű városi életforma minden előnyét vissza kívánja adni az ott élőknek. A beruházó a Novadom Group Kft leányvállalatai a Novadom-Lak Ép Kft és a Novadom Wohn-Bau Kft amely cégek helyben a szomszédos telken épített hamarosan átadásra kerülő COLOR-HÁZ Fantázianéven ismert projekt beruházója is. A projekt tervezése a 25 éves tapasztalattal és kiemelkedő referenciákkal rendelkező Gáspár Mérnöki Iroda által valósult meg.

A Társasház magas műszaki mínőségben történő kivitelezéséről a helyi székhelyű Vasi Opus Kft gondoskodik szintén évtizedekkel rendelkező tapasztalokkal.

A 49 lakásos társasház tervezésénél olyan praktikus lakások kialakítása volt a cél, amelyeket a lakók könnyedén formálhatnak igazi otthonná. Legyenek bár az első lakásukba beköltöző fiatalok vagy többgyermekes családok,befektetők a lakások között mindenki megtalálja a neki megfelelőt – CSOK Támogatással is. A kínálat széles sávban mozog, kezdve a 33 nm-es Garzontól egészen a 66 nm-es alapterületű lakásokig. A lakások nappali +1-2 szobásak.

A környék zöldövezeti és csendes családias lakópark, de emellett frekventált is. A ház környékén közvetlen közelben bevásárlási lehetőségek, sportlétesítmények is találhatók. Ugyanakkor a városközpont is gyorsan elérhető, autóval a 11-es Huszár úton, tömegközlekedéssel pedig a 6-os busszal juthatunk el a belvárosba. Így sem a városi pezsgésről, sem a nyugodt otthonról nem kell lemondania az ÁTRIUM-HÁZ lakóinak.

Minden lakástípus csodálatos nagyméretű terasszal rendelkezik ami még hozzájárul a kellemes lakóklímához.

A korlátozott számban kertkapcsolatos lakások vásárlására is lehetőség van azon ügyfeleink részére aki egy kizárólagos használatú kertre vágyik ahol megtalálja a kertben lelt örömét.

A két lépcsőházas épület 3 emeletes és mindkét lépcsőházban lift található. A fűtésrendszer ház-központi, minden lakóegység egyedi hőmennyiségmérővel ellátva.

A lakások alacsony rezsi költségéről a 20cm-es hőszigetelések és hőhídmegszakítók továbbá a 3 rétegű nyílászárók gondoskodnak.

Lehetőség van egyedi elképzelések megvalósítására is.

A burkolatok,szaniterek,beltéri ajtók tetszés szerint szabadon választhatók a megadott keretköltségen belül.

18 db Teremgarázs ,illetve 54 db nyitott gépkocsibeálló közül választhatnak az ingatlanok leendő tulajdonosai ezzel megoldva a parkolási problémák bosszantó pillanataitól.Lehetőség van Teremgarázs és parkoló vásárlására azon szomszédos ügyfeleink részére is akik csak a parkolási problémák megoldására keresnek megoldást.

Lakásaink 500.000.-1.000.000.Ft-ig leköthetők és ezek után személyre szabott egyedi fizetésű ütemezéssel várjuk kihelyezett helyszíni értékesítési irodánkban leendő ügyfeleinket.

NOVADOM Group Korlátolt Felelősségű Társaság

NOVADOM Group Korlátolt Felelősségű Társaság



Adószám: 25148723218

9700 Szombathely, Welther Károly utca 18.

Telefonszám: +36 70 770 0762

E-mail: info@novadom.hu

Adatkezelési szabályzat

Ingatlan fejlesztés projektek:

Mira ház - társasház Szombathelyen

Átriumház ház - társasház Szombathelyen

Color ház - társasház Szombathelyen

Savaria ház - társasház Győrben

© 2015 Your Company. All Rights Reserved. Designed By JoomShaper